Nepieciešama autorizācija Lai aizsargātu savu "Mani Projekti".
| Artikuls | 4M817 |
| Stāvi: | 3 |
| Kopējā platība: | 264.80 м2 |
| Griestu augstums: | 2.80 м |
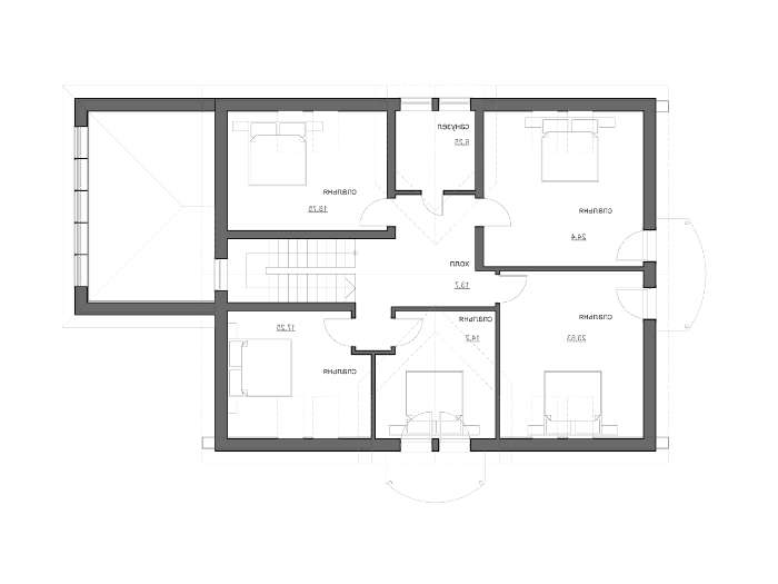
| Guļamistabas: | 6 |
| Sanitārie mezgli: | 2 |
| Garāža: | Garāža vienai automašīnai |
| Minimālais zemes gabala izmērs (platums): | 20.00 м |
| Minimālais zemes gabala izmērs (garums): | 26.00 м |
Materiāli: | |
| Sienas: | |
| Pārklāšana: | |
| Jumts: | |
| Pamati: | |
| Artikuls | 4M817 |
| Stāvi: | 3 |
| Kopējā platība: | 264.80 м2 |
| Griestu augstums: | 2.80 м |
| Guļamistabas: | 6 |
| Sanitārie mezgli: | 2 |
| Garāža: | Garāža vienai automašīnai |
| Minimālais zemes gabala izmērs (platums): | 20.00 м |
| Minimālais zemes gabala izmērs (garums): | 26.00 м |
Materiāli: | |
| Sienas: | |
| Pārklāšana: | |
| Jumts: | |
| Pamati: | |
Приобретая проект дома в компании Dom4M, Вы получаете комплект чертежей - 2 экземпляра, необходимый для проведения строительных работ и беспрепятственного получения разрешения на строительство.
Проект содержит три раздела – Архитектурный, Конструктивный и Инженерный (Водоснабжение, Отопление, Вентиляция, Канализация, Электроснабжение) + Пояснительная записка
1. Архитектурный раздел:
2. Конструктивный раздел:
3. Инженерный раздел:
Водоснабжение и канализация
Отопление, вентиляция
Электротехнические решения:
Проект является типовым и не учитывает конкретных условий строительства
В типовом проекте приняты следующие нормативные данные:
Срок изготовления проекта дома составляет от 3 до 30 рабочих дней.
Объем проектной документации – от 50 до 100 страниц А4 и А3, в зависимости от сложности проекта
Наша команда Архитекторов, Конструкторов и Инженеров – всегда готовы воплотить Вашу мечту в реальность!
Мы можем вносить любые изменения в проект по Вашему пожеланию и адаптировать его с учетом конкретных геолого-топографических и климатических условий, за дополнительную плату.
Всегда рады Вам помочь!