Iepazinies ar noteikumiem Autorizācija

Nepieciešama autorizācija Lai aizsargātu savu "Mani Projekti".

Anmelden mit:
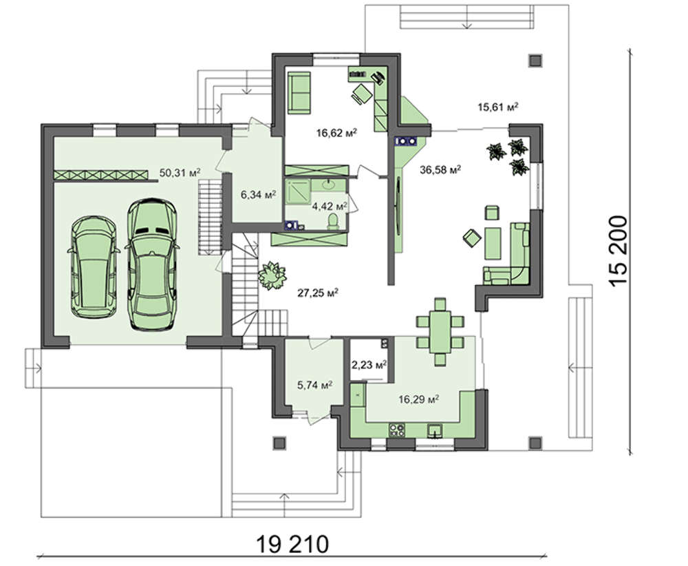
  • Pirmais stāvs:
    Pirmais stāvs::
    Pirmais stāvs::
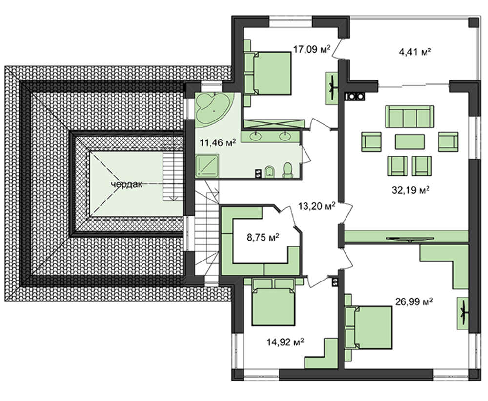
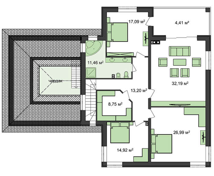
    Otrais stāvs:
    Otrais stāvs::
    Otrais stāvs::
  • 4M1638

    Artikuls4M1638
    Stāvi:2
    Kopējā platība:310.40 м2
    Dzīvojamā platība:144.39 м2
    Mājas augstums:9.50 м
    Griestu augstums:2.80 м
    Jumta slīpuma leņķis:25 °
    Jumta platība:314.04 м2
    Guļamistabas:5
    Sanitārie mezgli:2
    Garāža:Garāža divām automašīnām
    Ēkas platība:341.4 м2
    Materiāli:
    Sienas:
    Pārklāšana:
    Jumts:
    Pamati:
Stāvu plānojumi
  • Pirmais stāvs:
    Pirmais stāvs:
    Pirmais stāvs:
    Otrais stāvs:
    Otrais stāvs:
    Otrais stāvs:
Fasādes
Projekta sastāvs

Приобретая проект дома в компании Dom4M, Вы получаете комплект чертежей - 2 экземпляра, необходимый для проведения строительных работ и беспрепятственного получения разрешения на строительство.

Проект содержит три раздела – Архитектурный, Конструктивный и Инженерный (Водоснабжение, Отопление, Вентиляция, Канализация, Электроснабжение) + Пояснительная записка

1. Архитектурный раздел:

  • Общие данные по проекту
  • План координационных осей
  • Поэтажные кладочные планы
  • Поэтажные маркировочные планы с экспликацией помещений
  • План кровли
  • Разрезы и состав конструкций
  • Фасады с ведомостью внешних отделок
  • Элементы проемов – спецификация
  • Ведомость перемычек – сечения и спецификация
  • Экспликация полов
  • Объемы основных строительных материалов
  • Архитектурные узлы в конструкциях

2. Конструктивный раздел:

  • Общие данные по проекту
  • Схемы расположения и расчеты фундаментов
  • Элементы каркаса – схемы расположения
  • Схема расположения перекрытий
  • Опоры перекрытия на стены или Узлы армирования
  • Элементы кровли – схемы расположения
  • Чертежи отдельных элементов, узлы крепления, сечения
  • Ведомости расхода стали и бетона

3.  Инженерный раздел:

              Водоснабжение и канализация

  • Условные обозначения с общими данными
  • Поэтажная система водоснабжения и канализации
  • Аксономитрическая схема водоснабжения и канализации
  • Узлы и спецификация материалов

              Отопление, вентиляция

  • Условные обозначения с общими даннями
  • Система вентиляции
  • Система отопления
  • Аксономитрическая схема системы отопления
  • Тепловая схема
  • Спецификация материалов

             Электротехнические решения:

  • Условные обозначения и общие данные
  • Принципиальная схема ВРУ
  • План сетей освещения, план силовых сетей
  • Схема системы уравнения потенциалов
  • Схема повторного контура заземления
  • Спецификация материалов

Проект является типовым и не учитывает конкретных условий строительства

В типовом проекте приняты следующие нормативные данные:

  • Климатическая зона с нормируемым сопротивлением теплопередачи ограждающих конструкций (стен) до 4,6 м2°С/Вт (применяется утеплитель 100 мм); 3,5 м2°С/Вт ( утеплитель 50 мм) и 2,5 м2°С/Вт (без утеплителя)
  • Снеговая нагрузка 1,8 кПа (6 снеговой район в соответствии с ДБН В.1.2-2:2006 и III снеговой район в соответствии СНиП 2.01.07-85*)
  • Расчетная температура для отопления -22 градуса по Цельсию
  • Пирог стены принят 375 мм (380) газобетон (керамоблок) + 50 мм утеплителя
  • Фундамент принят сборно-монолитным (монолитная армированная подушка и стеновая часть фундамента со сборными блоками). Нормативная глубина промерзания грунта до 1,5 м

Срок изготовления проекта дома составляет от 3 до 30 рабочих дней.

Объем проектной документации – от  50 до 100 страниц А4 и А3, в зависимости от сложности проекта

 

Наша команда Архитекторов, Конструкторов и Инженеров – всегда готовы воплотить Вашу мечту в реальность!

Мы можем вносить любые изменения в проект по Вашему пожеланию и адаптировать его с учетом конкретных геолого-топографических и климатических условий, за дополнительную плату.

  • Получить профессиональную консультацию у наших специалистов, Вы можете любым способом связи: закажите обратный звонок, по skype, e-mail, телефон - наши контакты.

Всегда рады Вам помочь!

Lasīt pilnu tekstu
Papildu pakalpojumi
Līdzīgi

4M1638

Komentāri
Lai pievienotu komentāru, jums ir vai nu aizpildīt zemāk laukus vai login.
Augšupielādēt fotoattēlus 5 gabali
Jūsu vērtējums:
Līdzīgi
NOPIRKT
© 2010-2021 Dom4M. Visas tiesības aizsargātas
This site is protected by reCAPTCHA and the Google Privacy Policy and Terms of Service apply